Hiša - UMAG - 759.000 EUR
| Lokacija | UMAG, UMAG |
| Cena € | 759.000 |
| Površina | 126 m2 |
| Število sob | 3 |
| Površina parcele | 474 m2 |
| Število kopalnic | 3 |
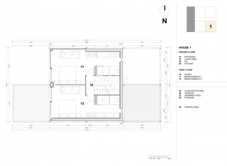
ISTRA, UMAG - Ekološko prijazna vila s pogledom na morje Naprodaj je moderna vila v mirnem zelenem okolju nedaleč od Umaga. Lokacija je primerna za kupce, ki iščejo zasebnost, kakovostno gradnjo in bližino morja. Letališče Pula je oddaljeno 45 minut, Trst 60 minut, Benetke in Treviso pa manj kot dve uri vožnje. Plaže so oddaljene približno 1500 metrov, v bližini pa so Parenzana, vinarne, oljčni nasadi, restavracije, wellness in golf igrišča. Vila ima skupno površino 474 kvadratnih metrov, od tega 202 kvadratna metra pod streho. Notranja bivalna površina je 105 kvadratnih metrov, dodatni prostori pa vključujejo 65 kvadratnih metrov pokritih teras, 16 kvadratnih metrov pokritega balkona in 16 kvadratnih metrov prostora za kolesa. Zunanjost sestavljajo zasebni vrt velikosti 208 kvadratnih metrov, vhodni vrt velikosti 16 kvadratnih metrov, zasebni bazen velikosti 22 kvadratnih metrov in dve parkirni mesti velikosti 26 kvadratnih metrov. Vila ima tudi pogled na morje. Konstrukcija je bila izdelana iz masivnega lesa iQwood, sistema, ki zagotavlja energetsko učinkovitost, stabilnost, regulacijo vlažnosti in prijetno mikroklimo skozi vse leto. Ta ekogradnja je še posebej cenjena med evropskimi kupci zaradi svoje trajnosti in dolgoročne vrednosti. Pritličje sestavlja odprt dnevni prostor z velikimi steklenimi stenami, ki vodijo na teraso, kuhinja, povezana z jedilnico, garderobna omara in stranišče za goste. Koncept je svetel, funkcionalen in dobro povezan z zunanjostjo. Na dvorišču se nahaja zasebni bazen, pokrita terasa in pokrita zunanja kuhinja, kar omogoča uporabo prostora skozi vso sezono. Zasebni vrt zagotavlja mir in diskretnost, shramba za kolesa pa je uporabna zaradi bližine številnih kolesarskih poti. V zgornjem nadstropju sta dve spalnici, obe z lastnimi kopalnicami. Talno ogrevanje, klimatska naprava, električne žaluzije in velike steklene stene dvigujejo raven udobja. Ena od sob ima dostop do pokritega balkona s pogledom na zelenje in morje. Vila je primerna kot družinska hiša, drugi dom v bližini morja ali naložba v luksuzni turistični najem. Zasebni bazen, vrt in visokokakovostna gradnja ga ločijo od drugih na trgu in ga naredijo varnega dolgoročnega nakupa. Za dodatne informacije, tlorise, vizualizacije in dogovor za ogled nas prosimo kontaktirajte. Takšne nepremičnine se običajno hitro prodajo, zato je priporočljivo pravočasno preverjanje razpoložljivosti. Spoštovane stranke, provizija agencije se zaračuna v skladu s Splošnimi pogoji poslovanja: www.dux-nekretnine.hr/opci-uvjeti-poslovanja
ID: 1238503