Hiša - UMAG - 2.268.519 EUR
| Lokacija | UMAG, UMAG |
| Cena € | 2.268.519 |
| Površina | 329 m2 |
| Število sob | 3 |
| Površina parcele | 212 m2 |
| Število kopalnic | 4 |
| Blizu plaže | DA |
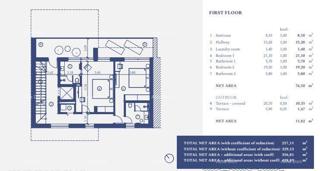
Ta samostoječa vila tipa 3 se nahaja v zaprtem luksuznem naselju na severu istrskega polotoka. Naselje se sestavlja iz 55 vil, aparthotela s 179 apartmaji ter velikim skupnim infinity bazenom dolžine 105 metrov, ter treh manjših zgradb s po 6 apartmaji. Vile tega tipa se nahajajo v osrednjem delu zemljišča in nudijo neoviran pogled na čudovit zaliv iz večine sob. Vila obsega 3 spalnice, studio sobo, 4 kopalnice, odprt dnevni prostor s fantastičnim pogledom, igralnico, garažo za dva avtomobila in vrt. Neto površina vile 23 znaša 329,13 m2 in vključuje klet, pritličje, 1. nadstropje in 2. nadstropje. Klet obsega: stopnišče, hodnik, sobo z opremo, kopalnico, vinsko klet, igralnico, dvigalo, shrambo. V pritličju vile se nahajajo: stopnišče, hodnik, studio soba, kopalnica, prostor za opremo, garaža. V 1. nadstropju se nahajajo stopnišče, hodnik, pralnica, 2 spalnici, 2 kopalnici, terase. V 2. nadstropju se nahajajo kuhinja + jedilnica + dnevni prostor, WC, spalnica, kopalnica in terasa. Notranjost vile krasijo spuščeni stropi v vseh prostorijah višine 280 cm, keramične ploščice I. razreda Cerim, Caesar v kopalnicah, parket I. razreda v spalnicah, kopalnice Hansgrohe. Ogledovanje in hlajenje cele vile je urejeno z vodnimi toplotnimi črpalkami, ki so prav tako brezšumne. Oprema vile je možna v treh stilih: mediteranski, eklektični ali luksuzni model. Za več informacij si oglejte naslednje podatke: Azra +385 91 611 5706 +385 98 420 885 azra@almadominvest.com
ID: 1276881