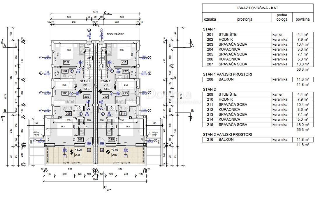
Hiša v mestu UMAG cena 790.000 EUR s površino 125 m2

Hiša Umag, 125m2