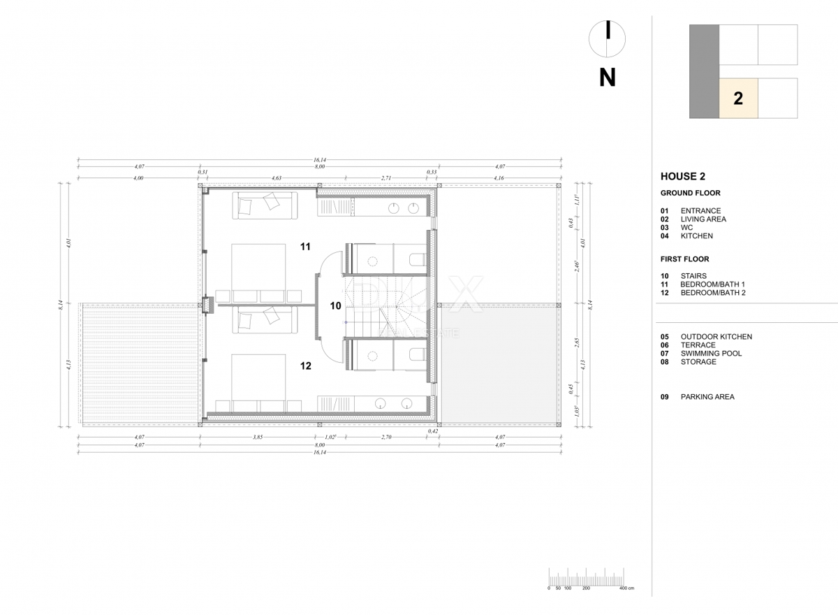
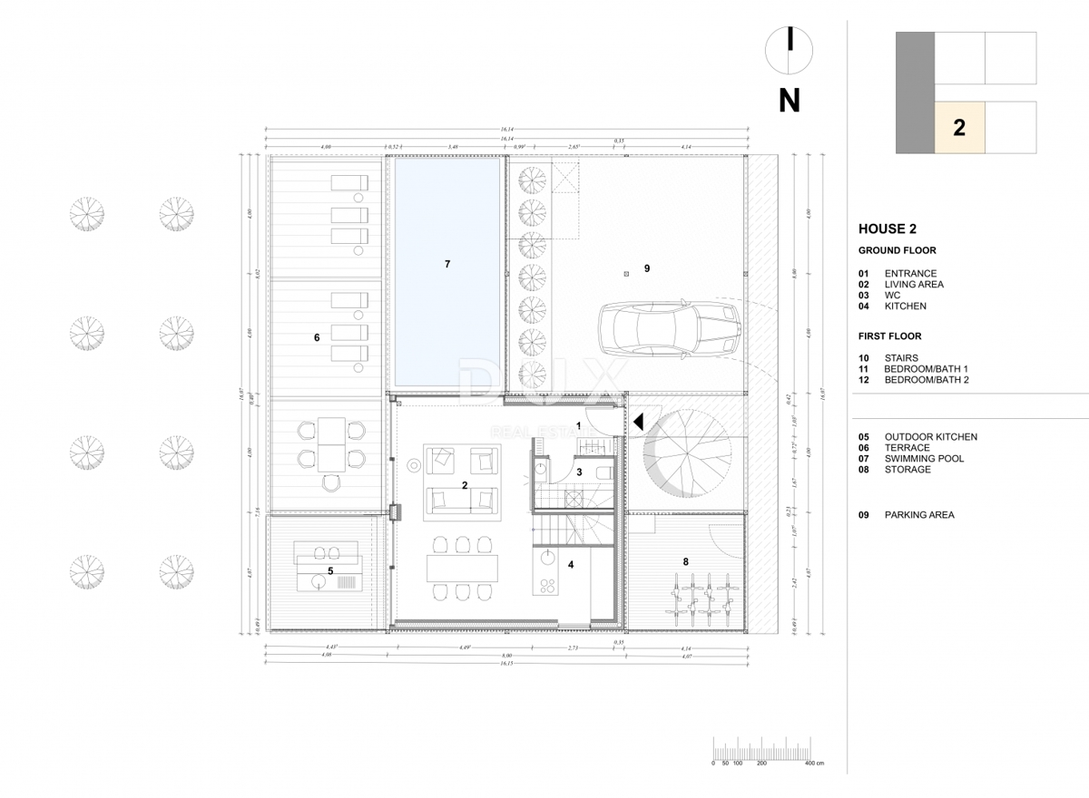
Hiša v mestu UMAG cena 699.000 EUR s površino 126 m2

ISTRA, UMAG - Ekološko prijazna vila v bližini morja