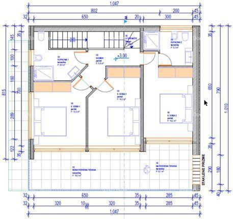
Hiša v mestu UMAG cena 680.000 EUR s površino 184 m2

UMAG – Moderna samostojna vila