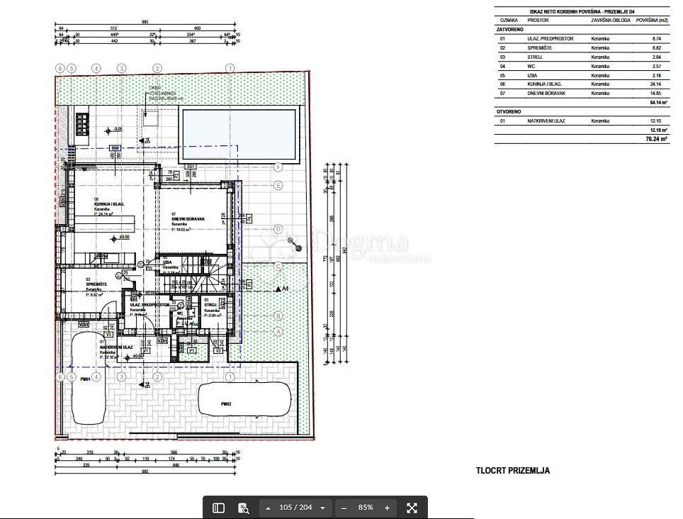
Hiša v mestu UMAG cena 495.000 EUR s površino 144 m2

Hiša Umag, 144m2