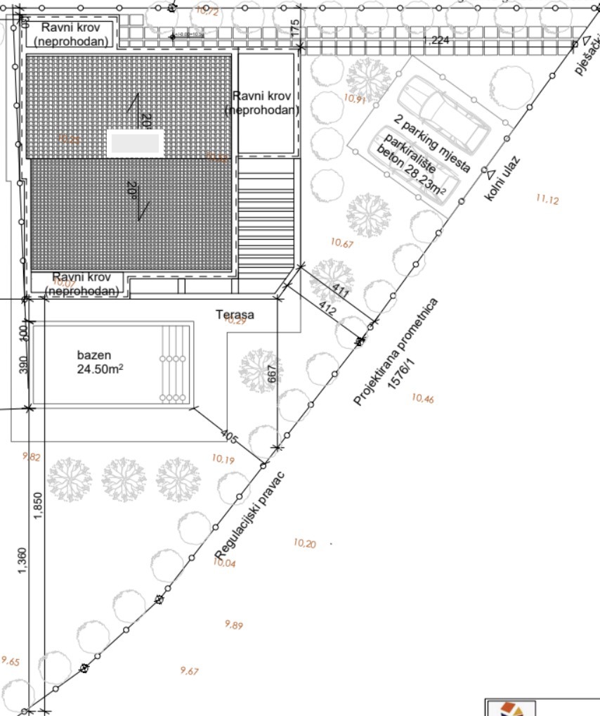
Hiša v mestu UMAG cena 1.114.850 EUR s površino 175 m2