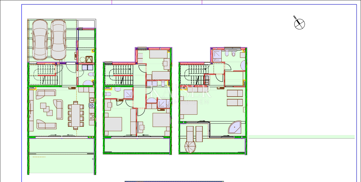
Hiša v mestu SAVUDRIJA cena 1.084.905 EUR s površino 233 m2

Hiša Savudrija, Umag, 233m2